Costruzione di un piano giapponese
I piani in Giappone arrivano molto più tardi rispetto all'Europa, circa intorno all'anno 1500. Fino ad allora, le superfici venivano rifinite con un cosiddetto piano a lancia, il yari ganna. Il piano a lancia con lama corta e leggermente curvata all'estremità di un lungo manico viene tirato a due mani sul legno. Lascia una superficie liscia ma leggermente rigata. I modelli per un piano con ferro fisso e lama dritta dovrebbero provenire dalla Cina e dalla Corea. Solo con essi è stato possibile lavorare realmente le superfici in modo piano. I rompispigoli sono stati utilizzati nei piani in Giappone solo dalla fine del XIX secolo, i modelli per questi erano probabilmente strumenti occidentali.
Nella sua forma cubica ridotta, il piano manuale tradizionale rappresenta molti esempi di design giapponese. Nonostante tutta la sua primitività, sorprende comunque con prestazioni elevate. È composto da solo due, al massimo quattro parti: il corpo del piano basso e un ferro da piano spesso, leggermente conico, e eventualmente anche un rompispigoli e un supporto. Non ci sono né pulsanti di colpo né guanti, il piano giapponese funziona senza "corna" e non conosce nemmeno la regolazione fine tramite vite. Il suo utilizzo e soprattutto la regolazione con il martello richiedono spesso un periodo di abitudine e pratica più lungo, i migliori risultati si ottengono con esso su legni teneri. Grazie alla sua bassa altezza e al baricentro basso, si appoggia bene e non oscilla. Si lavora con il piano giapponese molto più vicino al legno rispetto ai suoi parenti occidentali.
Scelta del legno
In Giappone, per la costruzione dei piani, si utilizza tradizionalmente il legno dell'albero Kashi, un albero a foglie sempreverdi. Grazie alla sua alta durezza, la suola del piano si consuma poco. Grazie all'alta tenacità e resistenza alla fessurazione, il corpo del piano si rompe raramente. Infine, anche il colore relativamente chiaro del legno ha senso, poiché il ferro scuro del piano è sempre ben visibile a causa del contrasto. Quindi, utilizzate un grezzo di Kashi o prendete un legno locale particolarmente ben stagionato con proprietà simili, come ad esempio faggio rosso senza tensioni, faggio bianco o acero a crescita fine.
Una particolare attenzione richiede la scelta del materiale. Dovrebbe essere legno il più possibile dritto e senza tensioni, che è stato essiccato per almeno uno o due anni. Il lato "sinistro", cioè il lato opposto al cuore, forma la suola del piano, il lato "destro" è rivolto verso l'alto. In caso di un possibile essiccamento notturno del materiale, la suola diventerà quindi leggermente concava. Le fibre del legno scorrono parallelamente alla suola del piano o sono leggermente inclinate verso il ferro. Grazie a tale inclinazione, il piano scivola meglio e la sua suola si consuma meno. I due estremi del corpo del piano, chiamato dai, portano tra l'altro le denominazioni "atama" o testa e "shiri" o fondo.
Nota: i passaggi di lavoro sono stati documentati nell'officina Inomoto a Sanjo, specializzata nella produzione di piani da rifinitura. Le bozze dei singoli passaggi di lavoro provengono anche dal signor Inomoto.
Incisione
Tieni il ferro con la mano destra. Premi diversi dita della mano sinistra (a seconda della larghezza del ferro) sul lato speculare del ferro in fondo alla fase, in modo che la sua superficie sia stabilmente appoggiata sulla pietra per affilare. Puoi sostenere il ferro dal basso con il pollice. Il miglior taglio si ottiene quando il filo è guidato perpendicolare o con un angolo fino a 30° rispetto alla direzione di affilatura.
In deroga a ciò, per i chiodi stretti, dove il filo è più stretto della lunghezza della fase: tieni questi ferri con la mano destra il più indietro possibile sul manico e guidali durante l'affilatura con il filo avanti e indietro. È del tutto legittimo utilizzare una guida per affilare, è fortemente raccomandata per i principianti. Affila finché non si forma un sottile filo sul filo.
Ora - ma non prima - puoi procedere a ritirare il filo. Usa una pietra per affilare con una grana tra 3000 e 8000 e lavora la fase e il lato speculare più volte alternativamente proprio come nel precedente processo di affilatura. Il filo si stacca e la fase e il lato speculare diventano sempre più lucidi e quindi più affilati man mano che il processo di ritirata avanza.
Fai attenzione a asciugare accuratamente il ferro dopo l'affilatura e a oliarlo leggermente prima di riporlo, per evitare la corrosione. In questo modo avrai a lungo piacere del tuo prezioso strumento.














Lavorazione
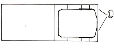
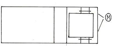
Infine, segnare anche la larghezza della lama del piano e del cassetto trucioli sulla suola del corpo del piano. A tal fine, segnare le fessure L e M.





Tuning
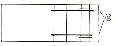
Tracciate la posizione del perno di supporto su un lato del corpo del piano. Questo perno sarà inserito a due terzi dell'altezza del corpo del piano. Quando tracciate la posizione, il rompitruciolo dovrebbe essere arretrato di circa 6 mm dalla suola, altrimenti il rompitruciolo non si inserirà bene in seguito.